首页
HOME
设计分享
SHARE
学习动态
LEARNING
关于我们
ABOUT
联系我们
CONTACT
您现在所在的位置:
首页
>
作品展示
>
家装作品
>
75平米小户型大改造
75平米小户型大改造
Post
2017.04.16 16:52:30
Read
11592
原创:75平米小户型现代风格家装卧室改客厅
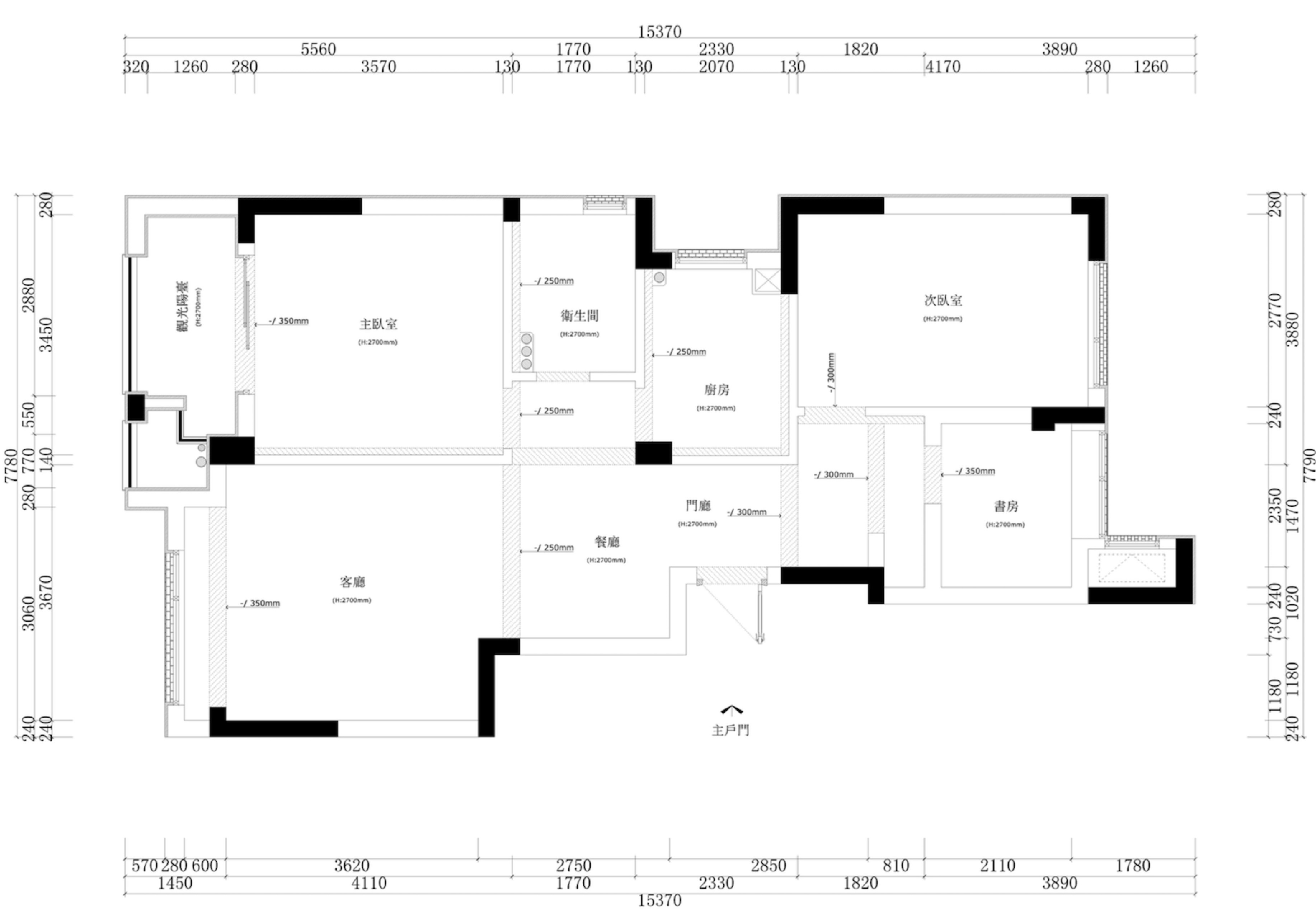
原始户型分析:
优点:户型方正,采光好
缺点:1.厨房略窄
2.卫生间正对餐饮
3.客厅较小
平面功能布局分析:
1.优化原始结构
2.扩大厨房面积
3.扩大客厅面积,使房子有了单独的外阳台和洗衣房
4.使卫生间不再正对餐厅。
效果图
整体为现代风格, 造型简约大气,装饰简介,以浅色调为主,配以深色烘托辅助。完工时间:2016年1月
原创作品,转载请注明作品来源:重庆设计师 www.cqsjs.com
上一篇:
重庆美式风格赏析
下一篇:
新中式别墅方案
最新作品
家装作品
软装作品
工装作品
重庆手绘墙
风格参考